altbau cube²|hof zoé|neubau cube|citywohnung cube inside|ranch usa multiple cubes|mobile cube

3 bauabschnitt intro home|impressum|investoren_______________ www.woaarchitects.de | info@woaarchitects.de
 
 
modell erdgeschoss strassenansicht cube³
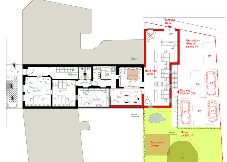
erdgeschoss
1.obergeschoss
1.obergeschoss
staffelgeschoss
grundstück
architekturbüro
architekturbüro
wohnen
wohnen
garten/parken
100 qm
035 qm
042 qm
032 qm
300 qm